

程力专用汽车股份有限公司销售二十六分公司主导品种有洒水车系列、吸污(吸粪)车系列、垃圾车系列、扫地车系列、油罐加(运)油车系列、高空作业车系列、清障车系列、随车吊系列、自卸车系列、教练车系列、半挂车系列、化工车系列、消防车系列、厢式(冷藏车)系列、牵引车系列、粉粒物料车系列、搅拌车系列、压力容器系列、专用车配件等十八大系列300多个品种车型。
24小时检测量1000
- 6000管
支持20:1.10:1混采检测
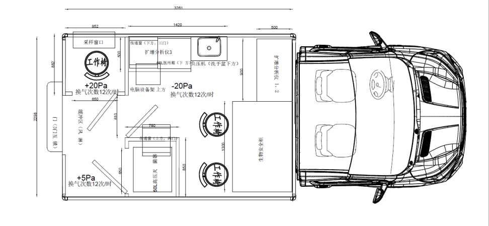
锐途医疗移动核酸快检车采用依维柯底盘改装而成,可以实现现场采样、现场检测、现 场出结果,车辆抵达现场后2分钟即可完成部署,可以做到随到随采,随采随检。
车辆分为核酸采样区、检测扩增分析区两个区域,可以定制洗消区。每台车24小时可以实现 1000 - 6000管的单检,支持20:1、10:1混采检测,46分钟即可出结果,实验过程中仅需1人即可 完成操作,极其适合社区、**、车站、码头、机场等社会公共场所驻点检测。
产品特点
◎高通■: 1000-6000管(24 小时)
◎全自动检测;检测时间46min,检测速度快,实现了随到随检
◎车载管理系统、轻量化全自动LIS系统与**/实验检测室无缝对接人力需求少,每车配置3-7人 ◎多功能:新冠病毒、呼吸道宀,原体、泌尿生殖系统、肠道病毒、血液传播疾病、食源性疾病................. .....
◎适用于社区、**、车站W多种场景,C1照即可驾驶,无需特殊驾照,每车3人即可操作
◎满足“P2+”实验室要求
车内布局

细节展示

设备清单
6米快检核酸检测车24小时6000管设备清单
|
序号 |
设备 |
品牌 |
型号 |
单位 |
数量 |
|
1 |
6米蓝牌核酸检测车 |
程力 |
咪 |
台 |
1 |
|
2 |
生物安全框-惡双人 |
博科 |
11228BBC86 |
台 |
1 |
|
3 |
核酸快速检测全舍动PCR分-系 统 |
天隆 |
48E |
台 |
2 |
|
4 |
圖形可旋转匸降座椅 |
程力 |
定司 |
个 |
4 |
|
5 |
全消毒革通道=调移液器 |
大龙 |
10-50 ML |
1 |
|
|
6 |
全消毒w动日通道移液器 |
大龙 |
10-100 ML |
把 |
2 |
|
7 |
移液器支架 |
大龙 |
线性色 |
套 |
1 |
|
8 |
混匀仪 |
大龙 |
MX-M |
台 |
1 |
|
9 |
离心机 |
大龙 |
D1008 |
台 |
1 |
|
10 |
冰箱 |
漠柯想 |
YCD-265 |
台 |
1 |
|
13 |
电缆线(软罰5芯国标) |
程力 |
.定制 |
米 |
15 |
|
14 |
超低温跡护-低温地区适用 |
程力 |
项 |
1 |
|
|
15 |
UPS (支持三W、实验设备W转 3。分钟以二) |
佃童 |
.定制 |
套 |
1 |
|
16 |
UPS能源管理系统 |
仙童 |
宅制 |
套 |
1 |
|
17 |
UPS锂电池簇匸度电) |
仙童 |
定乏 |
千瓦时 |
1 |
|
18 |
M输服务(输■入公里数) |
车队 |
车队 |
公圭 |
1000 |
|
19 |
培训,备案、验收服务 |
程力 |
♦程力 |
项 |
1 |
|
20 |
技宗人员差旅 |
趕力 |
程力 |
项 |
1 |
| ·可按用户要求为根据用户的实际需求,为每位用户打造品质、个性化的专用车,欢迎新老客户来电来人考察订购和自带底盘改装! ·创优质服务企业; 造用户满意产品; 树品牌!公司坚持以“质量求生存、信誉求发展、科技创新路、服务创品牌”的经营理念,以“诚信、务实、创新、进取”为企业宗旨,不断提升自身产品质量,开发适应市场需求物美价廉的多功能专用汽车! |

我们将谒诚为您提供好、快、优质的服务! ·**步:购车洽谈: 通过电话联系或实地考察洽谈车辆型号、价格和相关要求。 ·**步:签订合同: 双方签订车辆购销合同并预付合同定金(传真签订合同、实地签订合同均可)。 ·第三步:安排生产: 我公司根据合同要求,安排车间生产。 ·第四步:交付车辆: 车辆交付验收,支付车辆余款,完成相关手续。 交付方式:客户可自提车辆,也可协商由我公司安排送车并协定相关费用.更多详细订车流程请来电咨询! |

售后服务承诺书
本公司是一家专用汽车企业。多年来经过公司全体员工的不懈努力,已形成一条完整的设计、销售、质量检测和售后服务的产业链。售后服务是我公司售前、售中和售后环节中的重要支柱。特别是近几年来随着公司能力的不断提升和出口贸易的展开,售后服务体系得到了完善。
服务体系
一、服务体系是质量管理体系的重要环节。
二、服务保障:本公司服务是严格履行公司程序文件和质量手册,结合市场和用户的要求,给予保障。
三、服务宗旨:专业创造价值,诚信铸就未来!
四、服务机构:在销售公司下的售后服务部门,负责公司售后服务工作和管理各驻外机构的服务工作。
服务原则
在用户严格遵循使用说明书,正常操作的情况下,自购车之日起(以车辆出厂登记卡为准)一年内,行驶里程不超过 25000公里之内,因设计、装配原因引起的产品机件损坏,经有关汽车服务站和监督部门鉴定后,在三个工作日内向我公司售后服务部门提交书面资料,售后服务部门确认后实行三包服务。
具体服务如下:
1、三包服务期内的产品质量以包修为主,修理费全免(不包括易损件和电器部分)。
2、终身保修。超过包修期内的产品,需更换配件的只收取相关成本费。
3、免费培训操作员:
⑴ 由我厂安排工程师现场指导,学习理论及实际操作;
⑵ 掌握专用车的基本理论,性能以及功能;
⑶ 按程序能熟练的操作;
⑷ 能进行正常的日常维护,排除一般技术故障。
